Curtain Wall dwg – facciate continue,rh:archweb. Vetrate a pannelli con giunti ragno,rh:archweb. Panels glass door with joints \u0026quot;spider\u0026quot;,rh:freedwg.
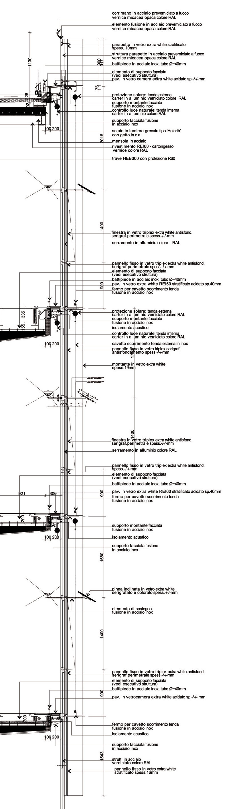
Segnala un’altra immagineSegnala l’immagine offensiva. Esternamente per i tamponamenti fissi e apribili a sporgere con vetro strutturale viene ripresa la stessa sezione architettonica di 50mm mentre per gli elementi . FACCIATE IN VETRO Sistemi per facciate continue – crociere speciali categoria: chiusure esterne Tamponamenti Sistemi per facciate continue, Autore:. La sezione strutturale disegnata è composta da un telaio in cemento armato e una facciata vetrata, comunemente chiamata “pelle”.
La sezione strutturale disegnata è composta da un telaio in cemento armato e una facciata vetrata, comunemente chiamata pelle. Zanetti srl produce e vende facciate continue con vetro strutturale che, grazie all’impiego del sistema.
